The New Wheelhouse

Thinking ahead! Canadian 1940 binnacle… looks like we can incorporate the wheel with hydraulic steering! Love it..
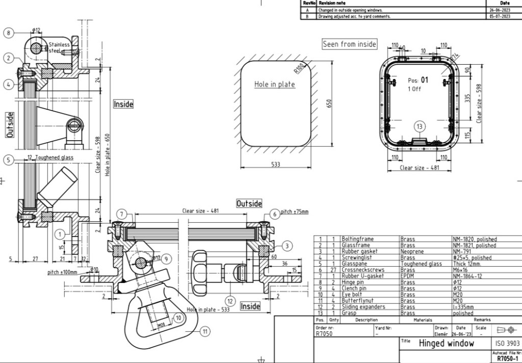
First window!
The first window as a trial on the forward starboard front..
The original design Simon developed- we have the door now aft on the starboard side.
Sanding and oiling commenced at my workshop in Jan 2023
200+ Year Old Cornish Oak and Okhampton English Elm
Simon The Builder.
Room for a door… Stable type
“Bilk”, a local friend felled a 200+year old Oak tree and planked it into 4” thick slabs which I machined to 3’x3’ and 3’x2’ x 7’6” lengths for the outer frame of the wheelhouse.

Simon is drawing out full scale, or lofting the wheelhouse at his small workshop near St. Mawes Falmouth.